
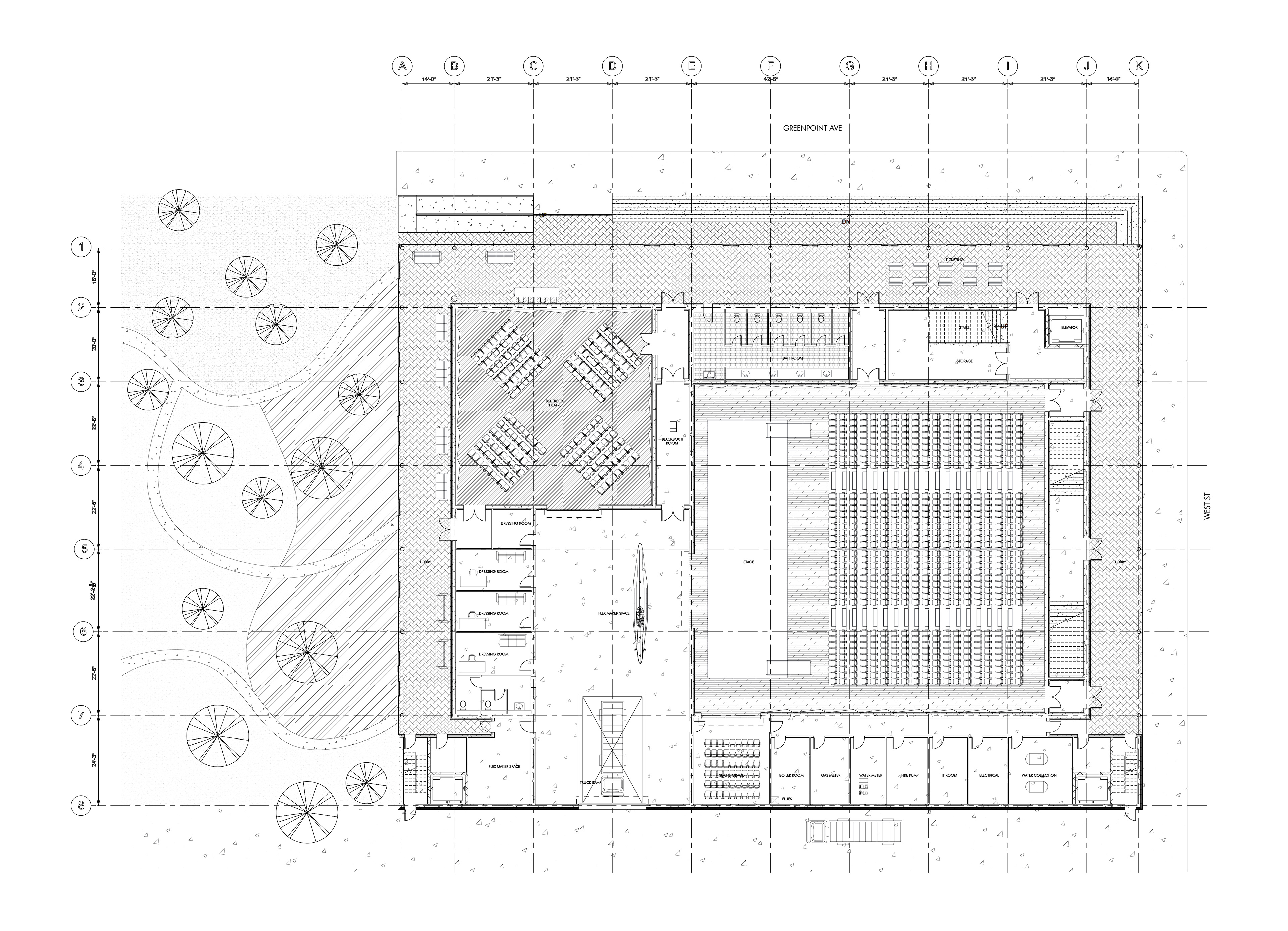
Greenpoint Theater is a versatile theater project in Greenpoint, Brooklyn. The design honors the warehouse tradition in the neighborhood with the concept of “a brick box within a glass box“. The brick box contains the front-of house and the back-of-house programs within. The main auditorium and the blackbox theater sit on the first floor of the brick box. The dance studio is cantilevered out onto the auditorium, providing a visual connection between the two. The semi-conditioned glass box provides the circulation space with both street and water views. Over the summer, sun louver panels and operable windows on the facade cool off the space. During the winter, geo-thermal loops on the floor keep the space within a comfortable temperature range. As a BIM project in REVIT, the design is executed through SD, DD and CD phases. It integrates multiple systems including fire protection, structures, mechanical, electrical, plumbing and are complying with ADA standards.
Team: JFyM

Sectional Perspective Details of Facade System 1




